CALL TODAY! (207) 664-1000 VISIT OUR MODELS
New England Homes is the
northeast's oldest modular home manufacturer. Using advanced modular home building technology, they have built over 15,000 homes.
Pine Grove Homes is one of the largest independent manufacturers of HUD code homes in the northeast. They specialize in exclusive kitchen and bath designs.
Everything Pleasant Valley Homes builds is designed and precision-engineered in-house and constructed in a state-of-the-art manufacturing facility. Thirty years of excellence!
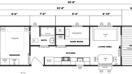
Fork Creek's park model homes are designed for campgrounds, resorts, and other recreational spaces in the Mid-Atlantic and Northeast United States.
Modular RV Cabins by Fort Creek